055959151 Piazza Serristori 20 - Figline e Incisa Valdarno (FI)
for sale in Rignano sull'Arno
Rignano sull'Arno
: San Donato - via delle Corti
€ 2.300.000
#550 sq.m.
#8
#6

for sale in Rignano sull'Arno - San Donato
via delle Corti

Description
Ref. 1076
€ 2.300.000

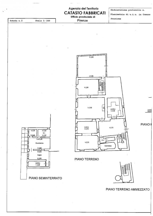
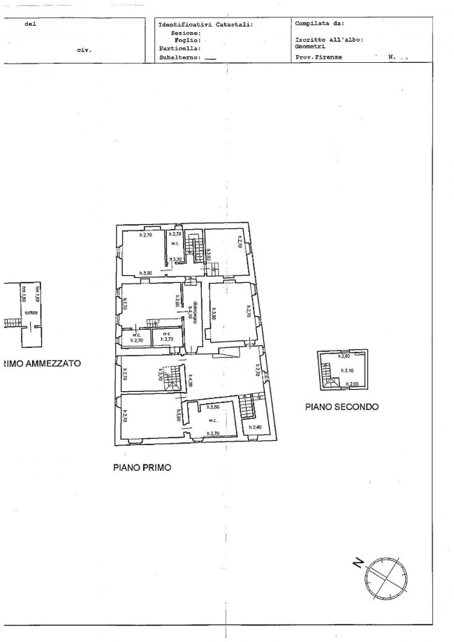
Florence first outskirts about 10 minutes from Viale Europa, we offer for <strong>Salestrong> this farmhouse free on 4 sides with breathtaking panoramic views and excellent exposure to the sun. Located in the municipality of <strong>Rignano sull'Arnostrong>, located in the San Donato area, it is a unique opportunity for those who want to live in a historic home and admire the beauty of the Tuscan countryside and still close to the city of art and services.<br> <br> <br> Built in 1700, the building is in excellent condition and offers a total of 550 square meters, of which 450 can be used as living space.<br> <br> <br> The house is spread over several floors and has a total of 20 rooms, including 8 bedrooms and 5 bathrooms, a laundry room, two large rooms with fireplace and a billiard room. <br> <br> <br> The property is currently free at the deed and can be purchased without having to wait for any authorization.<br> <br> <br> The heating systems are autonomous and powered by LPG, with a system of radiators or radiant panels that guarantee a warm and comfortable environment throughout the year.<br> <br> <br> The fixtures and windows are in good condition, ensuring adequate protection from the cold and heat outside.<br> <br> <br> The house is furnished in a sober and functional way and has a spacious eat-in kitchen, perfect for preparing delicious lunches and dinners in the company of friends and family.<br> <br> <br> The balcony and private garden of approximately 5000 m2 offer an ideal outdoor space to relax and enjoy the breathtaking view of the surrounding landscape.<br> <br> <br> The surrounding land is privately owned and offers the possibility of creating a personalized garden.<br> <br> <br> The property is completed by a large covered parking area, with space for 4 cars and a swimming pool of approximately 4x15. <br> <br> <br> Don't miss the opportunity to own this charming farmhouse and live immersed in the beauty of Tuscany.<br> <br> <br> Nearby cities of art <br> Florence 8 km <br> Arezzo 40 km<br> Siena 50 km <br> Peretola Airport 30 km

: G
Features
Are you interested in this property? These are some of its features:
Location
Check the map and discover the features of the area where the property is located:
for Sale
Rignano sull'Arno - San Donato
via delle Corti
€ 2.300.000
icon

550 sq.m.

sq.m.
icon

8

icon

6

Contact us
 for sale in Rignano sull'Arno
Colli toscani

VAT: 02301980484

Last update 20/11/2025
×
Choose where to look
- Multichoice




Minimum rooms
Minimum bathdrooms
Bedrooms
Other options - Multichoice